保有ビル情報八丁堀綜通ビル

八丁堀綜通ビルの詳細情報
| 所在地 | 東京都中央区八丁堀2-20-8 | 最寄交通機関 (時間は徒歩) |
地下鉄日比谷線八丁堀駅1分 JR京葉線八丁堀駅2分 |
|---|---|---|---|
| 竣工年月 | 1993年1月 | 延床面積 | 9,872.42㎡/2,986.41坪 |
| 構造 | 鉄筋鉄骨コンクリート造 | 建物規模 | 地下1階地上9階 |
| 設計 | (株)竹中工務店 | 施工 | (株)竹中工務店 |
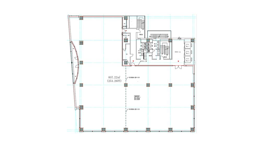
| 基準階面積 | 837.22㎡/253.26坪 | 駐車場 | 全34台 |

| 所在地 | 東京都中央区八丁堀2-20-8 | 最寄交通機関 (時間は徒歩) |
地下鉄日比谷線八丁堀駅1分 JR京葉線八丁堀駅2分 |
|---|---|---|---|
| 竣工年月 | 1993年1月 | 延床面積 | 9,872.42㎡/2,986.41坪 |
| 構造 | 鉄筋鉄骨コンクリート造 | 建物規模 | 地下1階地上9階 |
| 設計 | (株)竹中工務店 | 施工 | (株)竹中工務店 |
| 基準階面積 | 837.22㎡/253.26坪 | 駐車場 | 全34台 |